
About Jordan
.
Area: 89’342 km²
Population: 11’340’000
Language: Arabic
GDP (per capita): 12’809 $
Currency: Jordanian Dinar (JOD)
Time Zone: UTC +3
Capital: Amman
Density: 114 / km²
Places of interest:
Dead Sea, Petra, Wadi Rum, Amman, Madaba, Mt. Nebo
Jordan boasts diverse landscapes, from the iconic ancient city of Petra, nestled within rose-red cliffs, to the otherworldly deserts of Wadi Rum, where vast sand dunes meet dramatic rock formations. The Dead Sea, renowned for its high salt concentration, provides a unique experience of effortless floating, while the fertile Jordan Valley showcases lush greenery and historic sites. The country’s blend of historical treasures and natural wonders offers a captivating tapestry of scenery.

About Amman
.
Area: 1’680 km²
Population: 4’061’150
Density: 2’380 / km²
Highest elevation: 1’100 m
Lowest elevation: 700 m
Places of interest:
King Abdullah I Mosque, Roman Theater, Roman Temple of Hercules

About Black Iris: The Project
.
This project entails a mixed-use multi towers development along Abdoun Corridor; a main urban transportation corridors in the city of Amman. The project is developed on on a combination of 3 Parcels of a total land area of around 43,000 sqm; strategically located at a prime location and in close proximity to the diplomatic and commercial hub of Abdoun.
The project aims at creating an innovative, distinctive, vibrant, and sustainable development that prospers through time; creating long term value for the community through focusing on integration between place and form. The buildings and places shall enhance and embrace the particular qualities of the neighborhoods and develop the urban realm; based on the understanding of complex urban issues; mixed use; livable density and health & wellness along with the critical interface between people and infrastructure.
Residential Tower
with Commercial Facilities
Massing and Morphology
.
As inspired from the layers of the earth, topography, and geology; the massing composition develops and integrates with earthen layers, creating an extended podium that has curved outlines that cascade as elevated creating exposed terraces and an animated tower that is light and interchangeable in its organic outlines; vibrant with outdoor gardens.

Design Methodology
Massing and Composition
.
The defined massing subdivides altitude into a Podium and elevated Tower.
The Podium presents a cascading base that elevates to receding floor outlines revealing engaging terraces as you go up; Podium is host to a shopping center with various commercial functions, diverse in use, scale and interaction with the outdoor.
Distinctly and gracefully elevated, the Tower rises for 40 floors to host different typologies of residential apartments; while diverse in area and room mix, views, extended gardens and green pockets are carefully crafted and positioned for each apartment, giving private sanctuaries for each family to host various outdoor activities overlooking the Ammani skyline.

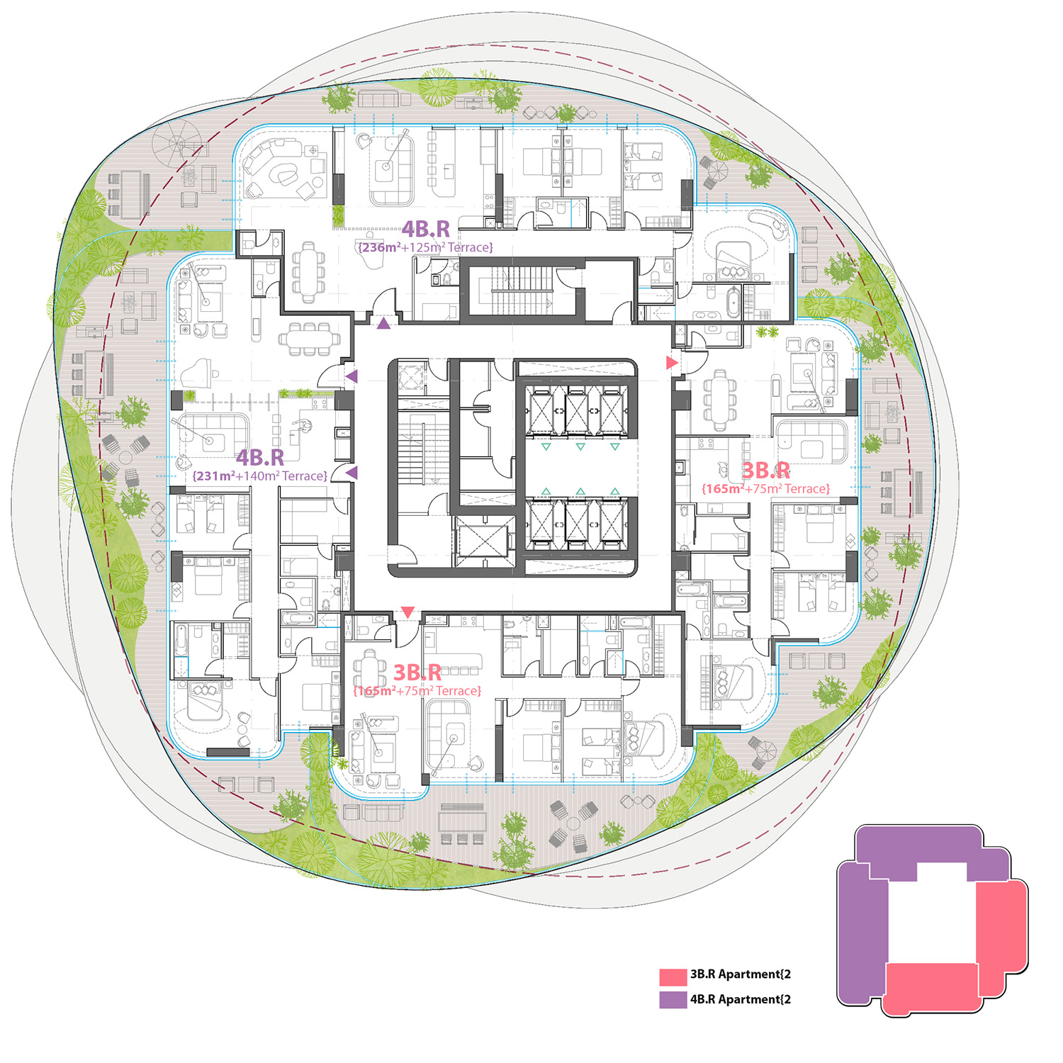
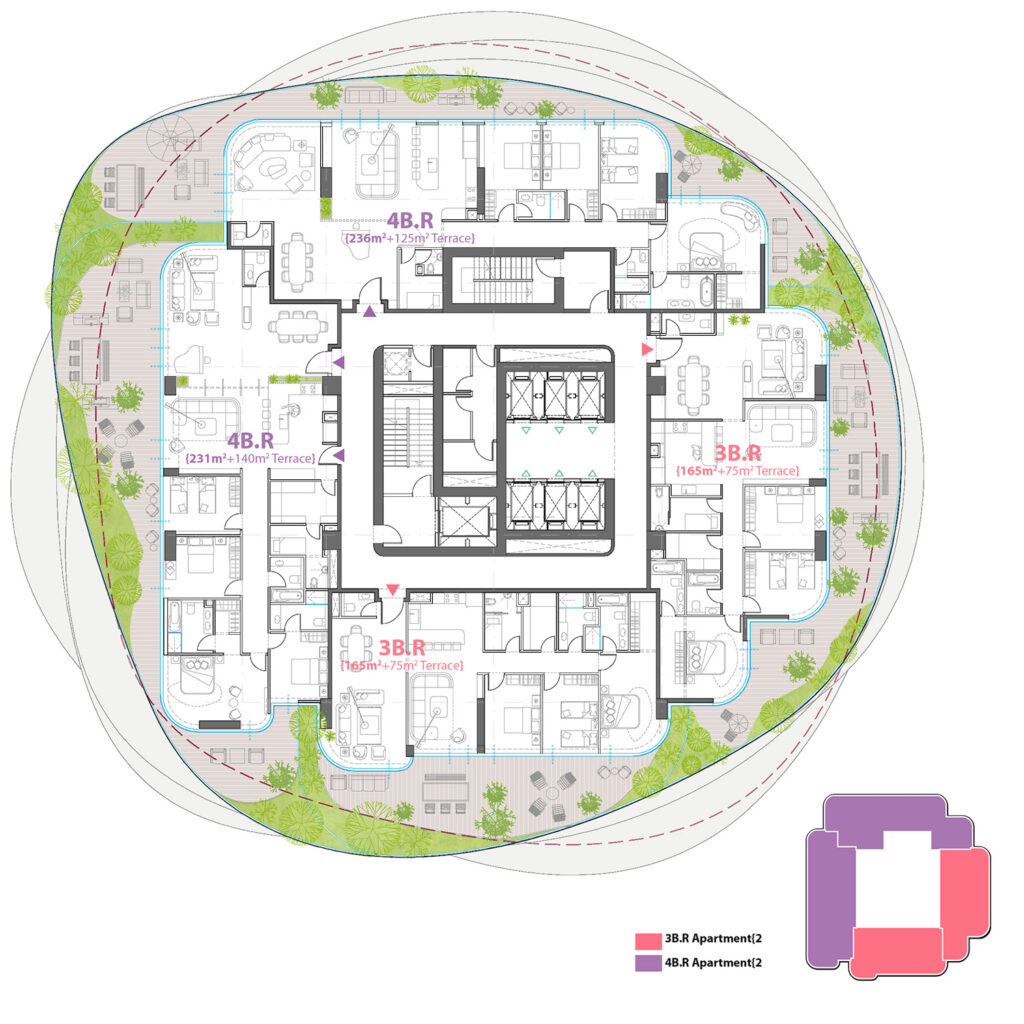
Architectural Plan
Tower & Open Floor Plans

Program Analysis
Program Distribution
.
Understanding and distributing the programmatic components with their diverse scales, connections, functional requirements and hierarchies as they revolve around a commercial podium, a residential tower and parking and services in the underground.

Regulatory Controls
Parcel 01 Area
|
20,755 sqm |
| FAR Maximum BUA Building Setbacks |
6 124,530 sqm above Ground Front 8 m – Side 8 m – Back 8 m |
Building data
..
Parcel 01 development consists of Podium, Medium Building and Tower;
.Podium
|
.Medium Building |
|
||
| Max. Coverage Number of Floors Floor Height Uses |
75% from Parcel Area 7 Floors Above Ground 5 m Commercial / Retail |
Max. Coverage Number of Floors Floor Height Uses |
20% from Parcel Area 7 Floors Above Podium 5 m Commercial / Retail |
|
.Tower |
.Underground** |
|
||
| Max. Coverage Number of Floors * Excluding Technical Floors Floor Height Uses |
15% from Parcel Area 40 Floors * Above Podium 4 m Residential Apartments & Facilities |
Coverage
|
100%
|
** The required number of parking and accordingly floor area, BUA and number of parking floors shall be confirmed after providing all required building services in Detailed Design Stage and a/location of the required engineering requirements and upon reviewing design and required parking a/location with authorities [GAMJ.
Hotel Tower
Tower & Open Floor Plans
Massing and Morphology
.
Inspired by the Urban Fabric of Amman City, that follows the natural terrain of the mountains and hills that shape the city.
Sculputral volumetric masses that are scaled to low or medium rise formations,
but accummulate to an elevated vertical composition that define the skyline of the city.

Design Methodology
Massing and Composition
.
Massing is animated through either large scale shifting of masses to break the altitude and create terraces, or the insertions of green pockets influencing the mass through volumetric sculpting and morphing to allow for an expandedquality of space, indoor and outdoor.
The terraces or pockets stand vibrant, celebrated and exposed contrasting the graceful and reserved uninterrupted parts of the tower which host the hotel rooms or apartments.
Both vibrant and graceful define a plural language of quietness and vitality that is the Hotel. And both types of space are complemented with landscaped space; either through the large public terraces or privatized quiet pocket gardens; each serving its users according to preference.

Architectural Plan
Tower & Open Floor Plans

Program Analysis
Program Distribution
.
Composition allows for progression
of the program to cater to a diversified
network of users and interact with
intermediate lively outdoor spaces.
The allocation and spatial aspects of each
component is presented homogeneously
with building mass, interactive views, user
appeal and other program components.
Initial planning framework considers
modularity and flexibility to accommodate
different room typologies as well as
corresponds to massing animation
through subtractions and the creation of
elevated pocket gardens.

Regulatory Controls
Parcel 02 Area
|
11,396 sqm |
| FAR Maximum BUA Building Setbacks |
668,376 sqm above Ground Front 8 m – Side 8 m – Back 8 m |
Building data
..
Parcel 02 development consists of Podium and Tower;
.Podium
|
.. |
|
||
| Max. Coverage Number of Floors Floor Height Uses |
70% from Parcel Area 7 Floors Above Ground 5 m Hotel & Serviced Apartments |
. . . . |
. . . . |
|
.Tower |
.Underground** |
|
||
| Max. Coverage Number of Floors * Excluding Technical Floors Floor Height Uses |
20% from Parcel Area 40 Floors * Above Podium 4 m Hotel & Serviced Apartments |
Coverage
|
100%
|
** The required number of parking and accordingly floor area, BUA and number of parking floors shall be confirmed after providing all required building services in Detailed Design Stage and a/location of the required engineering requirements and upon reviewing design and required parking a/location with authorities [GAMJ.
Business Tower
Offices & Commercial Facilities
Massing and Morphology
.
Primary Planning/Massing outline the over-layering of several forces that are seen vital to influence architectural outcome, aesthetically and functionally:
+ Utilizing the different site levels to create a hierarchy of different site access points and building entrances.
+ Maximizing efficiency and flexibility of Podium and Tower planning layout to commodate the various required functions.
+ Optimize visual opportunities of the various users of the Podium and the Tower, through the diverse floors.
+ Allow for an appropriate functional module that is the basic un~t for geometry, subtraction and functional distribution.

Design Methodology
Massing and Composition
.
Initial allocation of Podium and Tower outlines; responding to regulations, site forces and acessibility and design intent.
The building outline considers proper setbac allowing for any further circulation and buffer, moreover, the adjacent edges to the street low for a larger buffer zone for the purpose of circulation and extended outdoor area and landscape.
The initial tower outline is proposed to be located at the front edge allowing for openness and visual opportunities from a into the tower, moreover, to ensure the highlight of the lower mass as a standalone volume.

Architectural Plan
Tower & Open Floor Plans
Program Analysis
Program Distribution
.
Composition allows for progression of the program to cater to a diversified network of users
and various activities occuring consequently or simultaneously.
The allocation and spatial aspects of each component is presented homogeneously with building mass,
interactive views, user appeal and other program components.

Regulatory Controls
Parcel 03 Area
|
10,911 sqm |
| FAR Maximum BUA Building Setbacks |
65,466 sqm above Ground Front 8 m – Side 8 m – Back 8 m |
Building data
..
Parcel 03 development consists of Podium and Tower;
.Podium
|
.. |
|
||
| Max. Coverage Number of Floors Floor Height Uses |
70% from Parcel Area 7 Floors Above Ground 5 m Business Offices & Commercial |
. . . . |
. . . . |
|
.Tower |
.Underground** |
|
||
| Max. Coverage Number of Floors * Excluding Technical Floors Floor Height Uses |
20% from Parcel Area 40 Floors * Above Podium 4 m Business Offices & Commercial |
Coverage
|
100%
|
** The required number of parking and accordingly floor area, BUA and number of parking floors shall be confirmed after providing all required building services in Detailed Design Stage and a/location of the required engineering requirements and upon reviewing design and required parking a/location with authorities [GAMJ.
Residential Tower
with Commercial Facilities
Massing and Morphology
.
As inspired from the layers of the earth, topography, and geology; the massing composition develops and integrates with earthen layers, creating an extended podium that has curved outlines that cascade as elevated creating exposed terraces and an animated tower that is light and interchangeable in its organic outlines; vibrant with outdoor gardens.

Design Methodology
Massing and Composition
.
The defined massing subdivides altitude into a Podium and elevated Tower.
The Podium presents a cascading base that elevates to receding floor outlines revealing engaging terraces as you go up; Podium is host to a shopping center with various commercial functions, diverse in use, scale and interaction with the outdoor.
Distinctly and gracefully elevated, the Tower rises for 40 floors to host different typologies of residential apartments; while diverse in area and room mix, views, extended gardens and green pockets are carefully crafted and positioned for each apartment, giving private sanctuaries for each family to host various outdoor activities overlooking the Ammani skyline.

Architectural Plan
Tower & Open Floor Plans

Program Analysis
Program Distribution
.
Understanding and distributing the programmatic components with their diverse scales, connections, functional requirements and hierarchies as they revolve around a commercial podium, a residential tower and parking and services in the underground.

Regulatory Controls
Parcel 01 Area
|
20,755 sqm |
|
FAR Building Setbacks |
6 124,530 sqm above Ground Front / Side / Back : 8 m |
Building Data 1
..
….Parcel 01 development consists of
….Podium, Medium Building & Tower
.Podium
|
|
| Max. Coverage Number of Floors Floor Height Uses |
75% from Parcel Area 7 Floors Above Ground 5 m Commercial / Retail |
.Tower |
|
| Max. Coverage Number of Floors * excl. Tech. Floors Floor Height Uses |
15% from Parcel Area 40 Floors * Above Podium 4 m Residential & Facilities |
Building Data 2
..
.
.Medium Building |
|
| Max. Coverage Number of Floors Floor Height Uses |
20% from Parcel Area 7 Floors Above Podium 5 m Commercial / Retail |
.Underground |
|
| Coverage Setbacks Uses |
100% 0 m Parking & Services |
** The required number of parking and accordingly floor area, BUA and number of parking floors shall be confirmed after providing all required building services in Detailed Design Stage and a/location of the required engineering requirements and upon reviewing design and required parking a/location with authorities [GAMJ.
Hotel Tower
Massing and Morphology
.
As inspired from the layers of the earth, topography, and geology; the massing composition develops and integrates with earthen layers, creating an extended podium that has curved outlines that cascade as elevated creating exposed terraces and an animated tower that is light and interchangeable in its organic outlines; vibrant with outdoor gardens.

Design Methodology
Massing and Composition
.
Massing is animated through either large scale shifting of masses to break the altitude and create terraces, or the insertions of green pockets influencing the mass through volumetric sculpting and morphing to allow for an expandedquality of space, indoor and outdoor.
The terraces or pockets stand vibrant, celebrated and exposed contrasting the graceful and reserved uninterrupted parts of the tower which host the hotel rooms or apartments.
Both vibrant and graceful define a plural language of quietness and vitality that is the Hotel. And both types of space are complemented with landscaped space; either through the large public terraces or privatized quiet pocket gardens; each serving its users according to preference.

Architectural Plan
Tower & Open Floor Plans
Program Analysis
Program Distribution
.
Composition allows for progression of the program to cater to a diversified network of users and interact with intermediate lively outdoor spaces.
The allocation and spatial aspects of each component is presented homogeneously with building mass, interactive views, user appeal and other program components.
Initial planning framework considers modularity and flexibility to accommodate different room typologies as well as corresponds to massing animation through subtractions and the creation of elevated pocket gardens.

Regulatory Controls
Parcel 02 Area
|
11,396 sqm |
|
FAR Building Setbacks |
6 68,376 sqm above Ground Front / Side / Back : 8 m |
Building Data 1
..
….Parcel 02 development consists of
….Podium, & Tower
.Podium
|
|
| Max. Coverage Number of Floors Floor Height Uses |
70% from Parcel Area 7 Floors Above Ground 5 m Commercial / Retail |
.Tower |
|
| Max. Coverage Number of Floors * excl. Tech. Floors Floor Height Uses |
20% from Parcel Area 40 Floors * Above Podium 4 m Residential & Facilities |
Building Data 2
.
.
.Underground |
|
| Coverage Setbacks Uses |
100% 0 m Parking & Services |
** The required number of parking and accordingly floor area, BUA and number of parking floors shall be confirmed after providing all required building services in Detailed Design Stage and a/location of the required engineering requirements and upon reviewing design and required parking a/location with authorities [GAMJ.
Business Tower
with Offices & Commercial Facilities
Massing and Morphology
.
As inspired from the layers of the earth, topography, and geology; the massing composition develops and integrates with earthen layers, creating an extended podium that has curved outlines that cascade as elevated creating exposed terraces and an animated tower that is light and interchangeable in its organic outlines; vibrant with outdoor gardens.

Design Methodology
Massing and Composition
.
Initial allocation of Podium and Tower outlines; responding to regulations, site forces and accessibility and design intent.
The building outline considers proper setbacks allowing for any further circulation and buffer, moreover, the adjacent edges to the street allow for a larger buffer zone for the purpose of circulation and extended outdoor area and landscape. The initial tower outline is proposed to be located at the front edge allowing for openness and visual opportunities from and into the tower, moreover, to ensure the highlight of the tower mass as a standalone volume.

Architectural Plan
Tower & Open Floor Plans
Program Analysis
Planning Framework
.
Primary Planning/Massing outline the over-layering of several forces that are seen vital to influence architectural outcome, aesthetically and functionally:
- Utilizing the different site levels to create a hierarchy of different site access points and building entrances.
- Maximizing efficiency and flexibility of Podium and Tower planning layout to commodate the various required functions.
- Optimize visual opportunities of the various users of the Podium and the Tower, through the diverse floors.
- Allow for an appropriate functional module that is the basic unit for geometry, subtraction and functional distribution.

Regulatory Controls
Parcel 03 Area
|
10,311 sqm |
|
FAR Building Setbacks |
6 65,466 sqm above Ground Front / Side / Back : 8 m |
Building Data 1
..
….Parcel 03 development consists of
….Podium, & Tower
.Podium
|
|
| Max. Coverage Number of Floors Floor Height Uses |
70% from Parcel Area 7 Floors Above Ground 5 m Business / Offices & Commercial Facilities |
.Tower |
|
| Max. Coverage Number of Floors * excl. Tech. Floors Floor Height Uses |
20% from Parcel Area 40 Floors * Above Podium 4 m Business / Offices & Commercial Facilities |
Building Data 2
.
.
.Underground |
|
| Coverage Setbacks Uses |
100% 0 m Parking & Services |
** The required number of parking and accordingly floor area, BUA and number of parking floors shall be confirmed after providing all required building services in Detailed Design Stage and a/location of the required engineering requirements and upon reviewing design and required parking a/location with authorities [GAMJ.

Project Costs
.
The total investment costs for the development project, comprising three towers:
Hotel, Business, and Residential Towers
along with a commercial mall, amount to $828.5 million for all components. These costs are allocated across various categories, including land, building and equipment, soft costs, and other expenses. The breakdown reveals that the largest portion of investment, constituting 84.6%, is allocated to building and equipment expenses, ensuring the development of high-quality infrastructure for all components.

Financing
The financing structure for the project totals $828.5 million, with equity accounting for 40% of the funding, amounting to $331.4 million. Loans contribute 50% of the financing, totaling $414.3 million, while cash from advance payments comprises 10% of the total, equating to $82.9 million. This balanced financing approach combines equity investment, loans, and cash from advance payments to support the project’s development and ensure its financial stability.

The site
.
Land Area
3 Parcels with total area of 43,062 sqm
P1 : 20,755 sqm | P2 : 11,396sqm | P3 : 10,911 sqm
Total BUA (Above Ground) : 260,000 sqm
Allowable FAR : 6
Max. Coverage Ratio : 85%
Underground Parking & Services : 210,000 sqm
Total BUA : 470,000 sqm
Total Investments Costs USD Million
Financing Structure USD Million
Timeline & Numbers
.

Project Costs
.
The total investment costs for the development project, comprising three towers:
Hotel, Business, and Residential Towers
along with a commercial mall, amount to $828.5 million for all components. These costs are allocated across various categories, including land, building and equipment, soft costs, and other expenses. The breakdown reveals that the largest portion of investment, constituting 84.6%, is allocated to building and equipment expenses, ensuring the development of high-quality infrastructure for all components.
Total Investments Costs USD Million

Financing
The financing structure for the project totals $828.5 million, with equity accounting for 40% of the funding, amounting to $331.4 million. Loans contribute 50% of the financing, totaling $414.3 million, while cash from advance payments comprises 10% of the total, equating to $82.9 million. This balanced financing approach combines equity investment, loans, and cash from advance payments to support the project’s development and ensure its financial stability.
Financing Structure USD Million

The site
.
Land Area
3 Parcels with total area of 43,062 sqm
P1 : 20,755 sqm | P2 : 11,396sqm | P3 : 10,911 sqm
Total BUA (Above Ground) : 260,000 sqm
Allowable FAR : 6
Max. Coverage Ratio : 85%
Underground Parking & Services : 210,000 sqm
Total BUA : 470,000 sqm
Timeline and Numbers
.
Project Income Statement
.
The projected income statement outlines the financial performance of the business over a ten-year period, encompassing revenues, expenses, and net profits.
Revenue streams from various sources such as hotel operations, rental income, and sales are detailed, along with their corresponding operating expenses. In the initial years, hotel revenues are projected to increase steadily, from $42.8 million in Year 1 to $95.7 million in Year 10, while rental revenues are expected to grow from $32.4 million to $67.7 million over the same period. Gross profits from sales show fluctuations, ranging from $6.5 million to $13.0 million, with a significant portion attributed to cost of sales.
Despite varying expenses, including depreciation, general and administrative costs, and interest expenses, the business anticipates an upward trend in net profits, from -$15.4 million in Year 1 to $53.9 million in Year 10
The News
A project by




















